MEP


  • Overview
  • HVAC
  • Piping
  • Sanitary
Project type

Project deals with Revit Architecture model of buildings, Schematic / Hand sketch of MEP layout, Standard notes / details & Equipment families’ incl. AHU, FCU, Utility POD & Duct accessories etc.

Input

HVAC Markups, Piping, Sanitary Markups

Output

2D floor plans, Schedules, elevation/sections & 3D Revit model produced by us comprise HVAC, piping & sanitary routings.


Project type

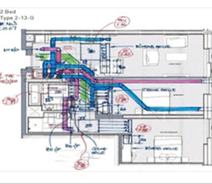
This gives the overall duct routing like supply air, exhaust air, return air and also the main mechanical equipment positions incl.

  • FCU
  • AHU
  • VAV
  • Supply Diffuser
  • Return Diffuser
  • Exhaust Diffuser
  • Plenum Box

Input

HVAC Markups

Output

2D floor plans, Schedules, elevation/sections & 3D Revit model produced by us comprise HVAC.


Input
Output

Input
Output
Project type

This markup gives the information about how the pipes run in the building, the pipe sizes & how they connect major mechanical and piping equipment and serve to bathroom & kitchen.

Input

Piping Markups

Output

2D floor plans, Schedules, elevation/sections & 3D Revit model produced by us comprise piping.


Input
Output
Project type

This sketch gives the information about the sanitary routing on how the toilet and kitchen waste goes out from the building, connections to man hole & septic tanks.

Input

Sanitary Markups

Output

2D floor plans, schedules, elevation/sections & 3D Revit model produced by us comprise Sanitary Routings.


Input
Output

Copyright @ , Trikaal Tech Enterprises Pvt Ltd | All Rights Reserved. Designed by Pixel Studios